Referenzen
Ausgewählte Projekte der letzten Jahre
[ 1 ] Eingriffsbezogene Fachplanungen und Bauleitplanung
Aufstellung und fachliche Bearbeitung eines Grünordnungsplanes (GOP) inkl. Erfassung und Bewertung von Biotoptypen sowie Brutvögel und Fledermäuse im Plangebiet
Bestandsaufnahme und Bewertung der Bestandssituation und Bearbeitung eines Grünordnungsplans im Geltungsbereich des B-Plans 2514 (Airport Stadt) in Bremen Neustadt / Neuenlande.
Auftraggeber:
Hansestadt Bremen (SBUV, SWAH, WFB)
Bearbeitung: 2019, 2022 - 2023
Bearbeitung: 2019, 2022 - 2023
Umweltbericht mit Artenschutzrechtlichem Fachbeitrag zum Bebauungsplan Nr. 487 „Bildungscampus Riensförde“
Durchführung einer Umweltprüfung im Rahmen des Bauleitplanverfahrens für den Geltungsbereich des B-Plans Bildungscampus Riensförde.
Auftraggeber:
Hansestadt Stade Abteilung Planung und Umwelt
Bearbeitung: 2018 - in Zusammenarbeit mit Mareile Ehlers Landschaftsarchitektin
Bearbeitung: 2018 - in Zusammenarbeit mit Mareile Ehlers Landschaftsarchitektin
UVP-Bericht Neubau des Betriebshofes und der Umsteigeanlage Gröpelingen (NEBUG)
Durchführung einer Umweltverträglichkeitsprüfung (UVP) zur Genehmigung des Vorhabens im Rahmen des Planfeststellungsverfahrens nach § 28 PBefG (Personenbeförderungsgesetz) (inkl. Landschaftspflegerischer Begleitplan und Artenschutzrechtlicher Beurteilung).
Auftraggeber:
Bremer Straßenbahn AG (BSAG)
Bearbeitung: 2018 - 2019
Bearbeitung: 2018 - 2019
Landschaftspflegerische Fachbeiträge für die Bohrplätze Bockstedt 92, 96, 97, 99, 100 und 101
Landschaftspflegerischer Begleitpläne einschließlich Artenschutzrechtlicher Beurteilung und Überarbeitung der Eingriffsermittlung für den Rückbau der Bohrplätze (Abschlussbilanzierung).
Auftraggeber:
Wintershall Holding GmbH
Bearbeitung: 2017 - 2018
Bearbeitung: 2017 - 2018
FFH-Verträglichkeitsvorprüfung für ein Aufenthaltsgebäude zur Einweisung der Besucher des Telescopiums an der Wörpe
Prüfung des Vorhabens auf auf die Verträglichkeit mit NATURA 2000-Gebieten nach § 34 BNatSchG in Kombination mit § 26 NAGBNatSchG.
Auftraggeber:
TELESCOPIUM-Lilienthal gGmbH
Bearbeitung: 2017
Bearbeitung: 2017
Landschaftspflegerischer Fachbeitrag für die Erdgasbohrung Burgmoor Z5
Landschaftspflegerischer Fachbeitrag einschließlich Artenschutzrechtlichem Fachbeitrag für die Anlage eines Bohrplatzes und einer Teilfeldsuchbohrung, um das Erdgasvorkommen der bisher ungetesteten Lagerstätte zwischen den Gasfeldern Bahrenborstel und Burgmoor zu erkunden.
Auftraggeber:
Vermilion Energy GmbH & Co. KG
Bearbeitung: 2016 - 2018
Bearbeitung: 2016 - 2018
Raumwiderstandsanalyse für die geplante Verdichterstation an der NEL (Nordeuropäische Erdgasleitung)
Ermittlung des Raumwiderstands mit Bezug zum geplanten Vorhaben in drei Kategorien in einem definierten Suchkorridor. Berücksichtigt sind insbesondere raumordnerische, naturschutzfachliche und infrastrukturelle Gegebenheiten sowie weitere planerische und rechtliche Vorgaben.
Auftraggeber:
Gasunie Deutschland Transport Services GmbH
Bearbeitung: 2016
Bearbeitung: 2016
Landschaftspflegerischer Fachbeitrag - Generalplan Küstenschutz - Erhöhung des Landesschutzdeiches in Bremen-Farge-West
Bewertung des Eingriffs in Natur und Landschaft gemäß §§ 14 - 17 BNatSchG i. V. mit § 8 BremNatG.
Auftraggeber:
Bremischer Deichverband am rechten Weserufer
Bearbeitung: 2015 - 2016
Bearbeitung: 2015 - 2016
Landschaftspflegerischer Begleitplan - Linie 1 Verlängerung bis Mittelshuchting einschließlich Linie 8 bis Landesgrenze
Erstellung des Landschaftspflegerischen Begleitplans und des Artenschutzrechtlichen Fachbeitrages im Rahmen des Planfeststellungsverfahrens nach dem Personenbeförderungsgesetz (PBefG § 28 (1)) für die Verlängerung der Straßenbahnlinie 1 einschließlich der Linie 8 bis zur Landesgrenze geplant.
Auftraggeber:
Sondervermögen Infrastruktur der Freien Hansestadt Bremen - Bau und Vermietung von Nahverkehrsanlagen
Bearbeitung: 2014 - 2018
Bearbeitung: 2014 - 2018
Umweltverträglichkeitsstudie Erdöl aus Rühlermoor
Umweltverträglichkeitsstudie zur Fortführung der Erdölförderung im Erdölfeld Rühlermoor (Landkreis Emsland) (inkl. FFH-Vorprüfung, Artenschutzrechtlicher Fachbeitrag und Landschaftspflegerischer Begleitplan).
Auftraggeber:
Exxon Mobil Production GmbH (EMPG)
Bearbeitung: 2014 - 2017
Bearbeitung: 2014 - 2017
Küstenautobahn A20 Abschnitt 6
Für den geplanten Bau des Abschnittes 6 der Küstenautobahn Erstellung der Umweltverträglichkeitsstudie mit Variantenuntersuchung. Für die Vorzugsvariante Erstellung Landschaftspflegerischer Begleitplan, Artenschutzrechtlicher Fachbeitrag und FFH-Verträglichkeitsprüfung sowie Bearbeitung der Einwände.
Auftraggeber:
Niedersächsische Landesbehörde für Straßenbau und Verkehr - GB Stade
Bearbeitung: ARGE Planungsbüro Tesch mit TGP, seit 2014
Bearbeitung: ARGE Planungsbüro Tesch mit TGP, seit 2014
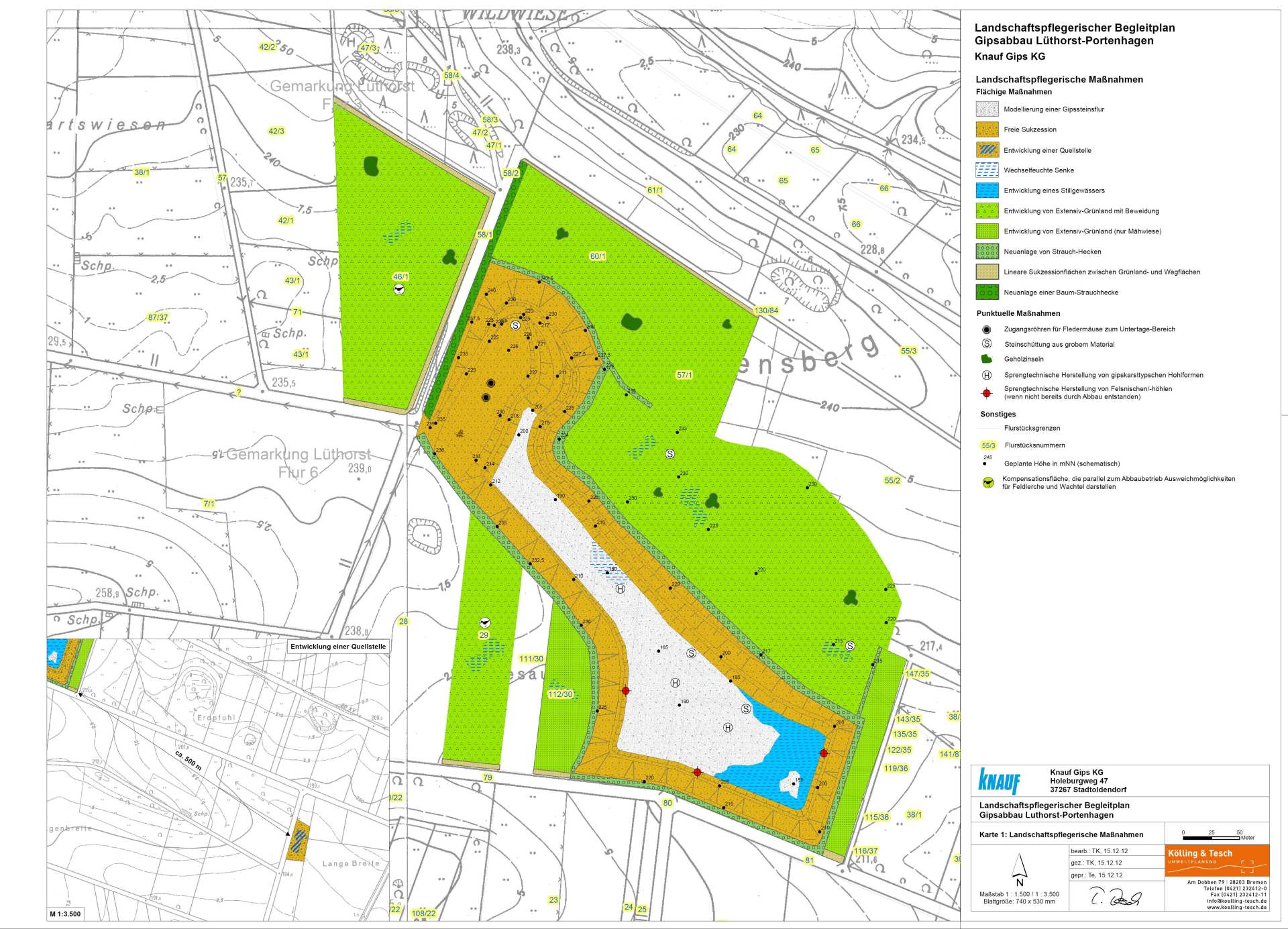
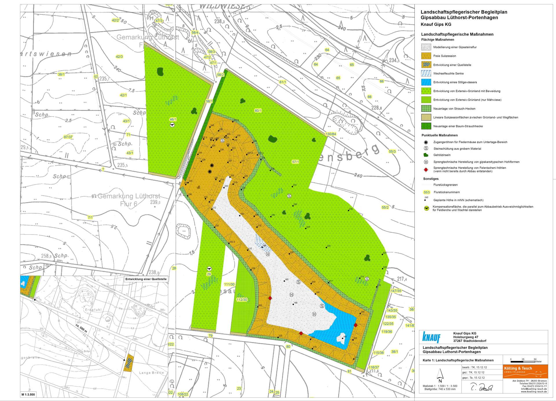
Umweltverträglichkeitsstudie zum geplanten Gipsabbau in Lüthorst-Portenhagen
Umweltverträglichkeitsstudie für die Eröffnung eines Gipsbruches (inkl. Rahmenbetriebsplan. Allgemeinverständlicher Zusammenfassung, FFH-Vorprüfung, Artenschutzrechtlicher Fachbeitrag und Landschaftspflegerischer Begleitplan).
Auftraggeber: Knauf Gips KG
Bearbeitung: 2012 - 2016
Umweltverträglichkeitsstudie für die Eröffnung eines Gipsbruches (inkl. Rahmenbetriebsplan. Allgemeinverständlicher Zusammenfassung, FFH-Vorprüfung, Artenschutzrechtlicher Fachbeitrag und Landschaftspflegerischer Begleitplan).
Auftraggeber: Knauf Gips KG
Bearbeitung: 2012 - 2016
Bilanzierung und Zusammenfassung der Kompensationsmaßnahmen für den Bau eines Offshoreterminals
in Bremerhaven
Teilbeitrag zu den Planfeststellungsunterlagen.
Auftraggeber:
bremenports GmbH & Co. KG
Bearbeitung:
2012 - 2014
Neubau der A26 / A20 Nord-West-Umfahrung Hamburg, Abschnitt K28 bis Landesgrenze Niedersachsen / Schleswig-Holstein
Erstellung Landschaftspflegerischer Begleitplan und Artenschutzrechtlicher Fachbeitrag.
Auftraggeber:
Niedersächsische Landesbehörde für Straßenbau und Verkehr - GB Stade
Bearbeitung: ARGE Planungsbüro Tesch mit TGP, 2012
Bearbeitung: ARGE Planungsbüro Tesch mit TGP, 2012
Landschaftspflegerischer Begleitplan zur Rekultivierung Blocklanddeponie Bremen
Landschaftspflegerischer Begleitplan einschließlich eines Gestaltungskonzeptes zur Rekultivierung der Blocklanddeponie Bremen. Das Gestaltungskonzept beinhaltet neben dem Begrünungskonzept auch eine umfangreiche Erschließungskonzeption für eine Erholungsnutzung unter Berücksichtigung der übergeordneten Wegenetzplanung der Stadt Bremen.
Auftraggeber:
Bremer Entsorgungsbetriebe
Bearbeitung: 2010 - 2014, 2019/2020
Bearbeitung: 2010 - 2014, 2019/2020
Landschaftspflegerischer Begleitplan - Verlängerung der Linie 8 von Bremen-Huchting über Stuhr bis Weyhe-Leeste
Erstellung des Landschaftspflegerischen Begleitplans und des Artenschutzrechtlichen Fachbeitrages im Rahmen des Planfeststellungsverfahrens für die Verlängerung der Straßenbahnlinie 8 von Bremen-Huchting über Stuhr-Brinkum bis Weyhe-Leeste.
Auftraggeber:
Bremen-Thedinghauser-Eisenbahn GmbH (BTE)
Bearbeitung: 2009, 2020
Bearbeitung: 2009, 2020
Quarzsandlagerstätte Norderstedt Hopfenweg
Umweltverträglichkeitsstudie für einen Quarzsand-Trockenabbau (inkl. Allgemeinverständlicher Zusammenfassung, FFH-Vorprüfung , Landschaftspflegerischer Begleitplan). Erstellung des Rahmen- und des Hauptbetriebsplanes einschließlich kontinuierliche Fortschreibung.
Auftraggeber:
Norderstedter Rohstoffcentrum GmbH
Bearbeitung: seit 2004
Bearbeitung: seit 2004



















